Усадьбы московской знати XIV–XV вв. на Подоле Московского Кремля
- Авторы: Панченко К.И.1, Макаров Н.А.1, Карпухин А.А.1, Коваль В.Ю.1
-
Учреждения:
- Институт археологии РАН
- Выпуск: № 2 (2023)
- Страницы: 64-80
- Раздел: СТАТЬИ
- URL: https://medbiosci.ru/0869-6063/article/view/138894
- DOI: https://doi.org/10.31857/S0869606323020150
- EDN: https://elibrary.ru/RGLILY
- ID: 138894
Цитировать
Полный текст
Аннотация
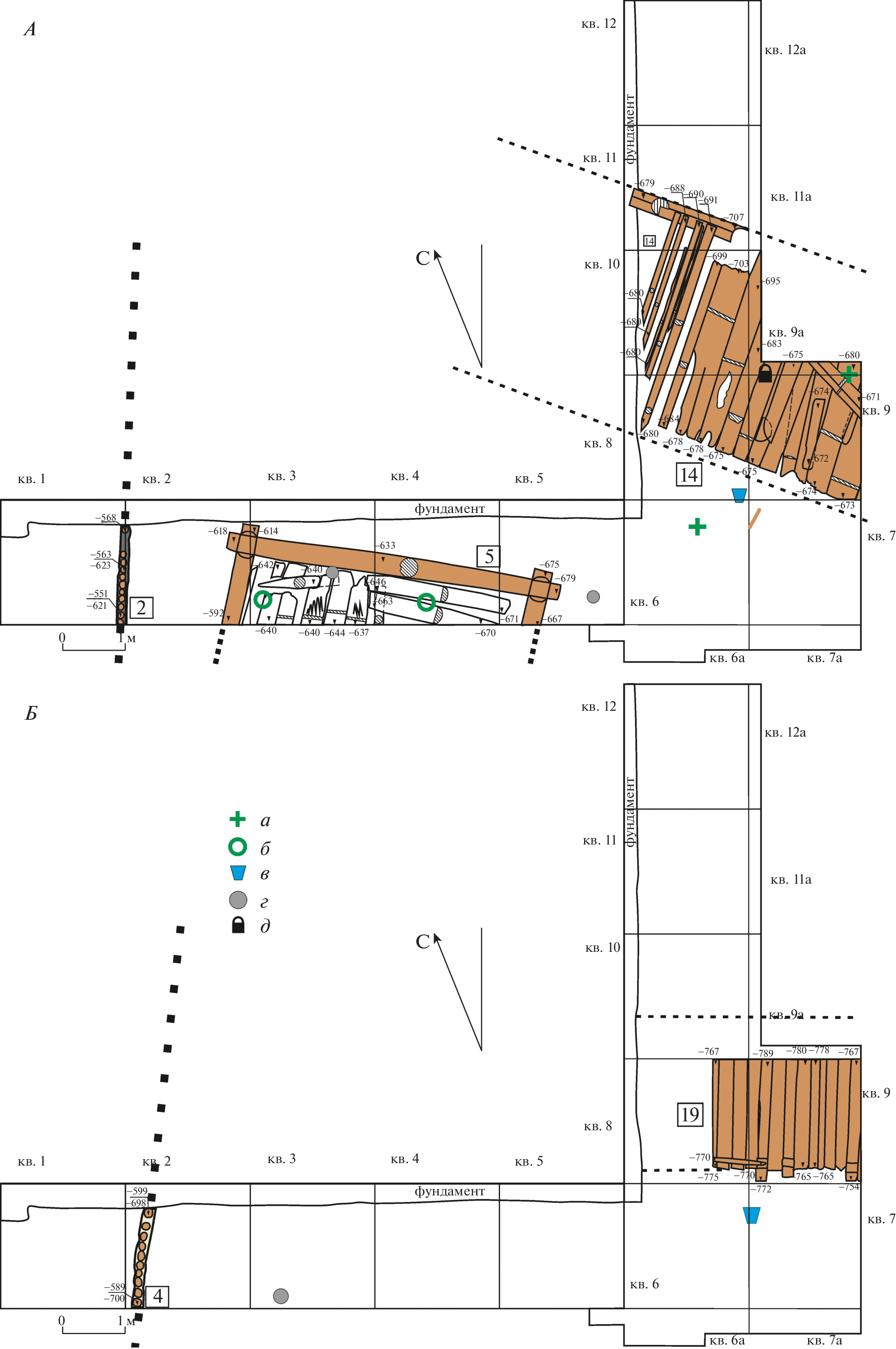
В статье дается предварительное общее описание результатов археологических исследований мокрых культурных слоев в Тайницком саду Московского Кремля в 2020 г. Собранные в ходе раскопок материалы представляют исключительный интерес для изучения стратиграфии и хронологии культурных отложений на Подоле, дают редкую для Кремля возможность дендрохронологического датирования отдельных построек и добавляют много нового к характеристике культуры Москвы и социального облика владельцев кремлевских усадеб XIV–XV вв. Застройка исследованного участка Подола начиная с середины XIV в. была плотной, размеры владений неизвестны. Набор вещевых находок рассматриваемого периода содержит как обычные для городского обихода бытовые и хозяйственные вещи, так и предметы, связанные с престижным стилем жизни и воинскими занятиями. Усадьбы середины–второй половины XIV в. можно рассматривать как часть кремлевских дворовладений Тимофея Васильевича Вельяминова или его ближайших родственников.
Ключевые слова
Об авторах
К. И. Панченко
Институт археологии РАН
Автор, ответственный за переписку.
Email: pakoi@mail.ru
Россия, Москва
Н. А. Макаров
Институт археологии РАН
Автор, ответственный за переписку.
Email: nmakarov10@yandex.ru
Россия, Москва
А. А. Карпухин
Институт археологии РАН
Автор, ответственный за переписку.
Email: karpukhin.a@rambler.ru
Россия, Москва
В. Ю. Коваль
Институт археологии РАН
Автор, ответственный за переписку.
Email: kovaloka@mail.ru
Россия, Москва
Список литературы
- Андреев С.И. Поселение Екатериновка 3: к вопросу о юго-восточной границе Рязанского княжества // Археология Подмосковья: материалы науч. семинара. Вып. 14. М.: ИА РАН, 2018. С. 209–235.
- Асташова Н.И., Петрова Л.А., Сарачева Т.Г. Кресты-энколпионы из собрания Государственного исторического музея. М.: РИП-Холдинг, 2013. 320 с.
- Дубровин Г.А., Коваль В.Ю. Усадебная застройка раскопа 1 в Тайницком саду Московского Кремля (предварительная публикация) // Археология Подмосковья: материалы науч. семинара. Вып. 10. М.: ИА РАН, 2014. С. 94–110.
- Завьялов В.И. Исследования Житного раскопа в кремле Переяславля Рязанского (2007–2009) // Материалы по археологии Переяславля Рязанского. Вып. 2. Рязань, 2013. С. 20–69.
- Завьялов В.И. Ножи, рукояти, ножны из Переяславля Рязанского (по материалам Житного раскопа) // Российская археология. 2020. № 1. С. 157–164.
- Забелин И.Е. История города Москвы. Ч. 1. М., 1905. 688 с.
- Карпухин А.А., Соловьева Л.Н. Некоторые результаты дендрохронологического анализа образцов древесины из раскопа 1 в Тайницком саду Московского Кремля // Аналитические исследования лаборатории естественнонаучных методов. Вып. 4. М.: ИА РАН, 2017. С. 10–16.
- Кирпичников А.Н. Древнерусское оружие. Вып. 3. Доспех, комплекс боевых средств IX–XIII вв. Л.: Наука, 1971 (Археология СССР. Свод археологических источников; вып. Е1-36). 126 с.
- Коваль В.Ю. Керамика из раскопок на Подоле Московского Кремля // Археология Подмосковья: материалы науч. семинара. Вып. 12. М.: ИА РАН, 2016. С. 437–475.
- Козлова А.В. Украшения ремня, сбруи и сумок восточного происхождения из раскопок в Великом Новгороде // Новгород и Новгородская земля. История и археология. Вып. 18. Великий Новгород: Новгородский гос. объед. музей-заповедник, 2004. С. 188–207.
- Колчин Б.А. Дендрохронология построек Неревского раскопа // Труды Новгородской археологической экспедиции. Т. 4. Жилища древнего Новгорода. М.: Наука, 1963 (Материалы и исследования по археологии СССР; № 123). 296 с.
- Кучкин В.А. Автограф сподвижника Дмитрия Донского // Родина. 1995. № 2. С. 23–26.
- Кучкин В.А. Забытый документ XIV в. из находки 1843 г. // Исторический архив. 1997. № 3. С. 14–20.
- Макаров Н.А., Коваль В.Ю., Кренке Н.А., Панова Т.Д., Энговатова А.В. Предварительные итоги раскопок в Тайницком саду Московского Кремля // Труды II (XVIII) Всероссийского археологического съезда в Суздале. Т. II. М.: ИА РАН, 2008. С. 464–467.
- Овчинникова Б.Б. Писала из раскопок в Новгорода 2000–2016 гг. // Новгородские археологические чтения – 4: материалы науч. конф. “Археология Новгорода. 85 лет исследований и открытий” (Москва, 15–16 декабря 2017 г.). Великий Новгород, 2021. С. 196–217.
- Панова Т.Д. Историческая и социальная топография Московского Кремля в середине XII – первой трети XVI века. М.: Таус, 2013. 408 с.
- Панова Т.Д. Раскопки в Тайницком саду Кремля и история археологического изучения территории подола Боровицкого холма Москвы в XIX–XX вв. // Краткие сообщения Института археологии. 2016. Вып. 243. С. 92–106.
- Полное собрание русских летописей. Т. 20. Львовская летопись. СПб., 1910. 418 с.
- Полное собрание русских летописей. Т. 25. Московский летописный свод конца XV века. М.: Изд-во АН СССР, 1949. 464 с.
- Полное собрание русских летописей. Т. 15. Рогожский летописец. Тверской сборник. М.: Языки русской культуры, 2000. 216, 540 с.
- Руденко К.А. Зеркала с изображением драконов и фениксов из Среднего Поволжья // Средневековые древности Приморья. Вып. 5. Владивосток, 2022. С. 311–342.
- Столярова Е.К., Коваль В.Ю. Стеклянные браслеты восточной части Московского Кремля (предварительные результаты работ 2016 года) // Краткие сообщений Института археологии. 2017. Вып. 249, ч. II. С. 86–94.
- Тарабардина О.А. Современные археологические исследования и проблема верификации дендрохронологической шкалы Новгорода // Ежегодник Новгородского государственного объединенного музея-заповедника. 2010. Великий Новгород, 2011. С. 53–56.
- Тарабардина О.А. Ландскрона и Ниеншанц: результаты дендрохронологических исследований // Российский археологический ежегодник. № 2. СПб., 2012. С. 626–635.
- Феребов А.Н. Основания датировки стеклянных браслетов, найденных на территории Московского Кремля // Археология Подмосковья: материалы науч. семинара. Вып. 14. М.: ИА РАН, 2018. С. 189–200.
- Ханенко Б.И., Ханенко В.Н. Древности русские. Кресты и образки. Вып. 1. Киев: Тип. С.В. Кульженко, 1899. 33 с.
Дополнительные файлы










