Development of technology to restore the working area of the stamp tool
- Authors: Mukhametzyanov I.R.1, Mukhametzyanov G.F.2, Astashchenko V.I.1, Mukhametzyanova G.F.1
-
Affiliations:
- Naberezhnye Chelny Institute, Kazan (Volga region) Federal University
- Blacksmith factory PTC «KAMAZ»
- Issue: Vol 19, No 3 (2023)
- Pages: 166-172
- Section: New materials and technology
- Submitted: 23.03.2024
- Published: 01.11.2023
- URL: https://medbiosci.ru/1816-9228/article/view/253745
- DOI: https://doi.org/10.18822/byusu202303166-172
- ID: 253745
Cite item
Full Text
Abstract
Subject of research: technology for restoring the working area of a stamp tool, the structure and properties of the deposited layer of the restored stamp surface.
Purpose of research: to develop a technology for restoring the working area of a hot deformation die insert for the formation of a gradient structure and properties of the metal over the cross section of the deposited zone.
Methods and object of research: a technology for restoring the insertion of a worn hot-forming stamp on the beam of the front axle of a KAMAZ truck using two-layer electric arc surfacing with one type of electrode wire is presented. To obtain a gradient structure in the section of the working area of the die, heat treatment is proposed, which consists in tempering the die after the first surfacing at a temperature of 620±10°C, and after the second surfacing at a temperature of 520±10°C.
Main results of research: it was found that after the restoration of the hot deformation die insert, the hardness of the deposited metal of the first (deep) layer was 34–36 HRC, the structure was tempered troostite, the hardness of the second (outer) layer was 42–46 НRC, structure – tempered martensite and troostomare-tensite. This ensures high wear resistance of surface layers and crack resistance in the depth of the die metal.
Keywords
Full Text
Введение
Штампы горячего деформирования работают в сложных условиях температурно-силового нагружения. При штамповке жаропрочных и других труднодеформируемых материалов температура поверхностных слоев (толщиной до 0,6–1,0 мм) штамповой оснастки скоростных молотов и прессов может достигать 650–750°С; при этом основная масса штампа остается прогретой до 400–500°С. Средние удельные давления при скоростном деформировании при штамповке на прессах и молотах составляют от 30 до 90 кгс/мм2 при деформировании алюминиевых сплавов и конструкционных сталей, и свыше 100–150 кгс/мм2 – труднодеформируемых сталей и сплавов. В результате штампы быстро изнашиваются, и в ряде случаев наблюдаются очаги выкрашивания и трещины. Чистота поверхностей штампов, особенно поверхностей, непосредственно связанных с образованием формы детали – гравюры штампа, оказывает исключительное влияние на долговечность их работы [1-6]. Эффективность использования штампов также определяется его стоимостью, которая может достигать до 50% от себестоимости поковки. Следовательно, разработки, связанные с восстановлением изношенных штампов горячего деформирования, являются актуальными. В настоящее время существуют различные способы восстановления рабочей гравюры штампового инструмента путем удаления изношенных участков и дефектного слоя инструмента механической обработкой и наплавки на изношенные участки износостойких материалов, наплавкой электродом (или проволокой) с последующим формированием рабочей гравюры штампа [7-10]. Однако данные технологии имеют некоторые ограничения. При восстановлении изношенной рабочей гравюры штампа путем наплавки на изношенные участки износостойких материалов [7] зачастую сохраняются дефекты и напряженное состояние в поверхностном слое, придается хрупкость наплавленному слою и наблюдается недостаточная прочность его сцепления с основным материалом. Все эти явления снижают работоспособность штампов горячего деформирования металлов в условиях воздействия высоких температур и ударно-силовых нагрузок. Кроме того, известные способы восстановления затрудняют или делают невозможным последующую обработку резанием наплавленного слоя. Недостатком технологии [8] является низкая пластичность металла наплавленного слоя, что снижает сопротивляемость стали ударно-силовым нагрузкам при эксплуатации штампов горячего деформирования. Недостатком технологии [9] является низкая пластичность металла в глубине гравюры, а также сохраняющиеся дефекты в виде микротрещин разгара и наличие зоны упруго-пластической деформации в напряженном состоянии в месте контакта наплавленного слоя с основным металлом, что также снижает трещиностойкость, а, соответственно, и долговечность штампа в эксплуатации. К недостатку способа [10] можно отнести сложность ведения процесса, предусматривающего применение для наплавки двух типов электродов из различных сталей и затруднение механической обработки верхнего наплавленного слоя из-за высокой твердости.
Цель данной работы – разработка технологии восстановления рабочей гравюры вставки штампа горячего деформирования.
Результаты и обсуждение
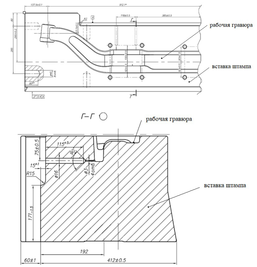
Восстановлению подвергали изношенную вставку штампа горячего деформирования на балку передней оси автомобиля «КАМАЗ», изготовленную из стали 5Х2МНФ (рис. 1).
Рисунок 1 – Схема расположения рабочей гравюры на вставке штампа горячего деформирования на балку передней оси автомобиля «КАМАЗ»
Вставку штампа горячего деформирования, поступившую в ремонт, подвергали дефектации путем внешнего осмотра и контроля по геометрическим размерам. На рабочей поверхности гравюры штампа выявляли следы износа, очаги выкрашивания и трещины (рис. 2).
Рисунок 2 – Общий вид поверхности изношенной рабочей гравюры штампа с наличием трещины
После очистки штампа и его элементов от производственных отходов и грязи и контроля рабочей гравюры на предмет износа и наличия трещин определяли величину снимаемого слоя под наплавку, которая в конкретном случае составила 95 мм, что превышало максимальное углубление гравюры на 10 мм.
С помощью воздушно-дуговой резки удаляли изношенную гравюру штампа и дефектный слой, а также трещины до их полного исчезновения. Зону выбранного металла подвергали дробеочистке для удаления наплывов, брызг и т. д. Снятие металла выполняли воздушно-дуговой резкой на установке «ААG». После резки вставку очищали от шлака и грязи и подготавливали к наплавке. Вставку штампа из стали 5Х2МНФ нагревали в шахтной печи СШО 12.15/9 до температуры 390±10°С и поддерживали её на протяжении всего процесса наплавки. Контроль температуры вели с помощью пирометра ИК «Термоскоп 100».
Наплавку порошковой проволокой ПП – Нп – Интерпро ФВ4-Н-Г проводили на установке «Forgeweld» (Чехия) в среде защитных газов – 80% аргона и 20% двуокиси углерода. Режим наплавки: напряжение 30 – 34В; ток 340 – 470А. Для наплавки использовали проволоку диаметром 2,4мм, которая состоит из оболочки и порошка наполнителя. В качестве оболочки использовали холоднокатанную ленту. Порошок – наполнитель состоит из порошков металлов, ферросплавов и минералов. Химический состав наплавленного металла данной проволокой приведен в таблице.
Таблица. Химический состав наплавленного металла
1 | Химический элемент | Кремний | Марганец | Хром | Никель | Молибден | Сера | Фосфор |
2 | Массовая доля элементов, % | 0,46-0,60 | 1,00-1,10 | 8,65-9,92 | 1,6-2,0 | 2,4-3,1 | Не более 0,02 | Не более 0,025 |
Толщина наплавки первого слоя должна превышать номинальный размер на 3–5 мм. После наплавки первого слоя толщиной 70–75 мм вставку штампа подвергали отпуску при температуре 620°С, затем удаляли с поверхности дефектный слой и оставляли толщину наплавки 60 мм.
После очередной очистки вставку вновь нагревали до 390±10°С в шахтной печи и наплавляли второй слой толщиной 40–45 мм, что превышало на 5–7 мм линию разъема штампа. Наплавленную вставку штампа подвергали отпуску в шахтной печи при температуре 520±10°С, а затем удаляли наплавленный металл до линии разъема штампа и выполняли механическую обработку на металлорежущих станках с ЧПУ для формирования рабочей гравюры (рис. 3).
Рисунок 3 – Схема расположения рабочей гравюры штампа в наплавленных слоях металла
После восстановления вставки штампа горячего деформирования на балку передней оси автомобиля «КАМАЗ» наплавленный металл первого (глубинного) слоя имел твердость 34–36 НRC и структуру – троостит отпуска, а второй (наружный) слой – твердость 42–46 НRC (рис. 3) и структуру – мартенсит отпуска и троостомартенсит. За счет более высокой пластичности первого слоя достигнута высокая трещиностойкость штампа. В результате высокой твердости на поверхности достигнуты хорошие показатели по износостойкости восстановленной вставки. После такой технологии восстановления количество отштампованных поковок на балку передней оси составило 1820 шт., при отсутствии трещин термоусталостного характера на поверхности рабочей гравюры вставки.
Заключение и выводы
Разработанное техническое решение позволяет получить градиентную структуру и свойства металла по сечению наплавленной зоны, и после формирования гравюры штампа придать низкую твердость (34–36 НRC) и повышенную пластичность в глубинных слоях гравюры, а также более высокую твердость (42–46 НRC) и износостойкость на её поверхности. За счёт сочетания таких свойств по конфигурации и сечению гравюры достигается высокая износостойкость наиболее нагруженных поверхностных слоёв металла и придаётся высокая пластичность и трещиностойкость в глубине.
About the authors
Ilnar R. Mukhametzyanov
Naberezhnye Chelny Institute, Kazan (Volga region) Federal University
Email: ilnarr116m@gmail.com
ORCID iD: 0000-0001-8586-3259
SPIN-code: 6093-2151
Scopus Author ID: 57197716066
ResearcherId: GRY-6078-2022
https://kpfu.ru/ilnar.mukhametzyanov
Assistant of the Department of Information Systems
Russian Federation, Naberezhnye ChelnyGamir F. Mukhametzyanov
Blacksmith factory PTC «KAMAZ»
Email: muhametzjanovGF@kamaz.org
Deputy Director
Russian Federation, Naberezhnye ChelnyVladimir I. Astashchenko
Naberezhnye Chelny Institute, Kazan (Volga region) Federal University
Email: astvi-52@mail.ru
ORCID iD: 0000-0001-8141-6021
SPIN-code: 2766-0980
Scopus Author ID: 6507110140
ResearcherId: O-3605-2015
https://kpfu.ru/vladimir.astaschenko
Doctor of Technical Sciences, Professor Department of Materials, Technologies and Quality
Russian Federation, Naberezhnye ChelnyGulnara F. Mukhametzyanova
Naberezhnye Chelny Institute, Kazan (Volga region) Federal University
Author for correspondence.
Email: gulnara-ineka@mail.ru
ORCID iD: 0000-0002-3046-5859
SPIN-code: 4905-0179
Scopus Author ID: 6507214804
ResearcherId: M-5877-2015
https://kpfu.ru/gulnara.muhametzyanova
Candidate of Technical Sciences, Associate Professor Department of Materials, Technologies and Quality
Russian Federation, Naberezhnye ChelnyReferences
- Петров, А. Н. Штампы, износ и смазочные материалы: учебное пособие / А. Н. Петров, П. А. Петров, М. А. Петров. – Москва : Московский Политех, 2017. – 123 с. – Текст : непосредственный.
- Гурьев, А. М. Новые материалы и технологии для литых штампов / А. М. Гурьев. – Барнаул, 2000. – 216 с. – Текст : непосредственный.
- Дроздов, И. А. Штамповые стали: учеб. пособие / И. А. Дроздов, Н. В. Ляченков, В. В. Уваров. – Самара: Самар. гос. аэрокосм. ун-т, 2001. – 134 с. – Текст : непосредственный.
- Kortman, W. Werkzeuqstäle und Werkzeuqe für das Stranqpressen von Rohren und Profilen aus NE Vetallen / W. Kortman // International Steel & Metalle Maqazine. – 1988. – V. 26. – № 11. – S. 1079–1086.
- Федулов, В. Н. Перспективы использования существующих и создания новых инструментальных сталей для производства технологической оснастки горячего формообразования изделий / В. Н. Федулов. – Текст : непосредственный // Литье и металлургия. – 2006. – № 1 (37). – С. 125–129.
- Мухаметзянова, Г. Ф. Влияние качества обработки поверхности и химсостава расплавов на работоспособность пресс-форм при литье под давлением силуминов / Г. Ф. Мухаметзянова, М. С. Колесников, И. Р. Мухаметзянов. – Текст : непосредственный // Литейное производство. – 2016. – № 7. – С. 27–29.
- Соколов, Г. Н. Наплавка износостойких сплавов на прессовые штампы и инструмент для горячего деформирования сталей / Г. Н. Соколов, В. И. Лысак; ВолгГТУ. – Волгоград: РПК «Политехник», 2005. – 284с.
- Астафьева, Н. А. Технология сварки плавлением и давлением: учебное пособие / Н. А. Астафьева, А. Е. Балановский, А. Г. Тихонов. – Иркутск: ИРНИТУ, 2021. – 188 с. – Текст : непосредственный.
- Тылкин, М. А. Справочник термиста ремонтной службы / М. А. Тылкин. – М. : Металлургия, 1981. – 648 с. – Текст : непосредственный.
- Шевченко, О. И. Управление структурой, составом и свойствами покрытий при плазменной наплавке / О. И. Шевченко. – Нижний Тагил : Изд-во НТИ УГТУ-УПИ, 2006. – 290 с. – Текст : непосредственный.
Supplementary files




